This craft learning center emulates a journey through a forest inspired by the challenges one has to overcome in order to master the intricate craft of rattan weaving.


Rattan harvesting from the rainforests is a very arduous and time consuming task. Harvesters whose livelihood depends on extracting raw rattan, often have to cross rivers and also face other difficulties to get to the extraction site.
In a similar way, a rattan craftsman also has to undertake a long laborious journey through an apprenticeship with a master craftsman for several years in order to master the intricacies of the craft.
Drawing inspiration from the journeys of the rattan harvester and rattan craftsman, this craft center emulates a journey through a forest.

On the first floor is the rattan peeling and storage area, where the peeled rattan is sorted according to its size, quality and variety. Here, visitors could catch a glimpse of the artisans sorting rattan, as well as be able to go into the space and experience the process.

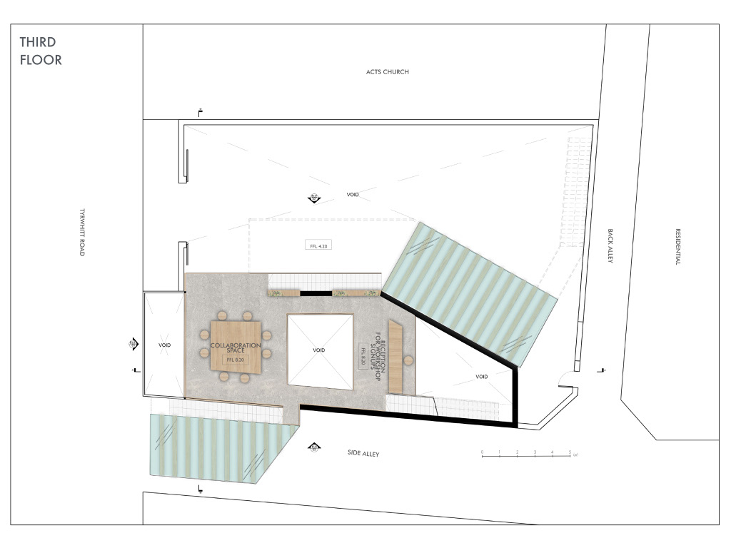
Up the stairs on the second floor are weaving and assembling workshops for the artisans as well as for the visitors. As they walk along the narrow bend, the visitors could choose to go to the public weaving workshop or continue their journey towards the collaboration space on the third floor. Whichever path they choose leads them to a different experience, just like a journey through a forest, where you never know what to expect.



The collaboration space at the ‘forest canopy’ or rooftop marks the end of the journey. This space sparks collaboration between artisans, local designers and visitors and acts as an incubator of young talent. This is where the craft of rattan weaving is re-invented to appeal to more youthful audiences.

“We Weave is comprised of voids that let in natural light within the spaces so that the visitors feel as if they are progressing from dense to less dense parts of the forest, as they go higher and higher up the building.”












